KYN28A-12 indoor metal-clad movable switchgear is a complete power distribution device for 3.6kV~12KV, 3 phase AC50/60Hz, single bus sectionalized system. It is mainly used for power transmission of middle/small generators in power plants, power receiving, transmission for substations in power distribution and power system of factories, mines and enterprises etc., so as to control, protect and monitor the system. It complies with IEC 62271-1, IEC 62271-200 and other relative standards. lt has functions of preventing to push or pull the breaker' s handcart with load, breaker's mistakenly open or close, shut off the breaker when the grounding switch is on the position of close, enter into an electrified compartment, mistakenly close the interlock function of the grounding switch when it is electrified. The handcart type standardized cabinet after design optimization is actually a kind of power distribution device with superior performance.
Ambient Temperature: No more than +40℃ and no less than -15℃.Averagetemperature is no more than +35℃ within 24 hours.
Altitude: No more than 1000m.
Relative Humidity: the average daily value is no more than 95%, the average monthly value is no more than 90%.
Earthquake Intensity: No more than 8 degrees.
Vapor pressure: average daily value is no more than 2.2kPa, average monthly value is no more than 1.8kPa.
Installation locations without fire, explosion danger serious pollution, chemical corrosion and violent vibration.
The cabinets and partition boards adopting hot-dip Al-Zn alloy-coated steel sheet and frame adopting multiple bending technology make high overall intensity and good earth continuity.
Fully considering the operation characteristics of the neutral point of the power system without grounding or through the arc suppression coil grounding, increase the insulation clearance and enhance the insulation level, so as to ensure that the switchgear meets the high requirements for the insulation strength.
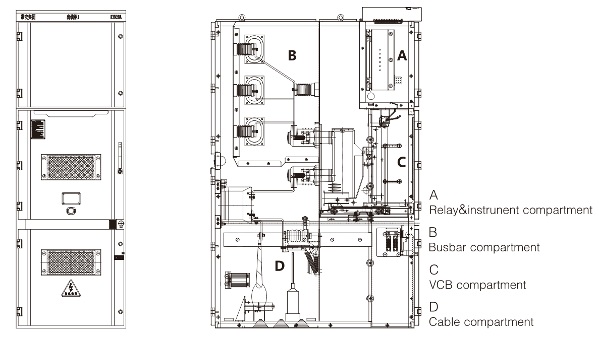
Completely metal clad and absolutely compartments separation.
The degree of protection is IP4X, which effectively prevents the equipment from being invaded by sundries and insect pests.
It can be installed away from the wall, which is more convenient for double side maintenance. Or it can be installed against the wall, maintained in front of the cabinet, with less space occupation.
Perfect standardized design: higher overload capacity, better Partial discharge control, more reliable mechanical interlock, more effective internal arc protection, and more matching interchangeability.
| No. | Content | Unit | Value | ||
| 1 | Rated Voltage | kV | 12 | 24 | |
| 2 | Rated Current | A | 630~4000 | ||
| 3 | Rated Frequency | Hz | 50/60 | ||
| 4 | Power Frequency Withstand Voltage in 1 min | Phase, Earthed | kV | 42 | 50 |
| isolating, Fracture | 48 | 65 | |||
| 5 | Lightning impulse Withstand Voltage (Peak) | Phase, Earthed | 75 | 95 | |
| isolating, Fracture | 85 | 110 | |||
| 6 | Rated Current of the Main Busbar | A | 630~4000 | ||
| 7 | Rated Current of the Branch Busbar | A | 630~4000 | ||
| 8 | Rated Short-circuit Breaking Current | kA | 20/25/31.5/40/50 | ||
| 9 | Rated Short Circuit Making Current | kA | 50/63/80/100/125 | ||
| 10 | Rated Short-time Withstand Current | kA | 20/25/31.5/40/50 | ||
| 11 | Rated Peak Withstand Current | kA | 50/63/80/100/125 | ||
| 12 | Frequency Withstand Voltage in 1min of Aux Control Loop | V | 2000 | ||
| 13 | Internal Arc Duration Test (0.5s) | kA | 31.5~40 | ||
| 14 | Degree of Protection | IP | IP4X (IP2X when the front door is opened) | ||
| 15 | Rated Voltage of Aux Control Loop | V | AC or DC 110/220 | ||
Note: Customizable products (Rated Voltage:24kV), please consult our company for detailed data.

| Voltage | Rated parameters | I(mm) | J(mm) | M(mm) | N*(mm) |
| 12kV | 630~1250A down line | 800 | 2240 | 2320 | 1450 |
| 12kV | 630-1250A Overhead cable | 800 | 2240 | 2320 | 1610 |
| 12kV | 1600A and above (rated current 1250A at an altitude of 4000m) |
1000 | 2240 | 2320 | 1450 |
| 12kV | 1600A and above (rated current 1250A at an altitude of 4000m) |
1000 | 2240 | 2320 | 1610 |
| 24kV | Down line | 1000 | 2320 | 2430 | 1760 |
| 24kV | Overhead cable | 1000 | 2320 | 2430 | 2060 |
Send us a message if you have any questions or request a quote.Our experts will give you a reply within 24 hours
and help youselect the right valve you want.