KYN61-40.5 Air insulated metal-clad movable switchgear is an indoor switchgear, assembly operating under the Conditions of 50/60Hz three phase and rated 40.5kV AC voltage, which applied to the transmission and distribution for generators, transformer substations and the industry and mine enterprises. It also can be used to control, protect and monitor electric circuits, and is very useful in frequent operating conditions. It complies with IEC 62271-1, IEC 62271-200 and other relative standards.
Ambient Temperature: No more than +40℃ and no less than -15C. Average temperature is no more than +35℃ within 24 hours.
Altitude: No more than 1000m.
Relative Humidity: the average daily value is no more than 95%, the average monthly value is no more than 90%.
Earthquake Intensity: No more than 8 degrees.
Vapor pressure; average daily value is no more than 2.2kPa, average monthly value is no more than 1.8kPa.
Installation locations without fire, explosion danger, serious pollution, chemical corrosion and violent vibration.
The cabinets and partition board adopting hot-dip AI-Zn alloy-coated steel sheet and frame adopting assembled structure make high overall intensity and good earth continuity.
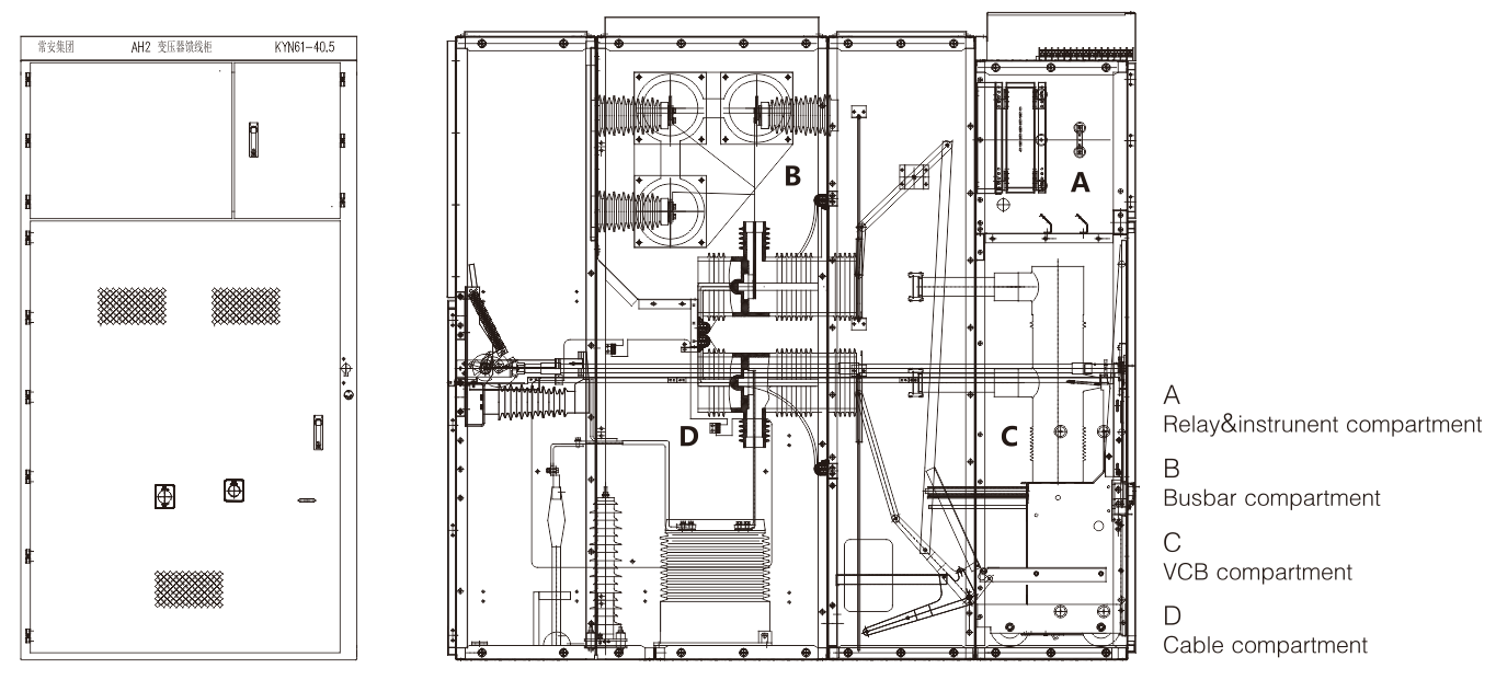
The cabinet is a combined type and the handcart of breaker is floor structure type.
The new composite insulating vacuum circuit breaker has the characteristics of interchangeability and simple replacement.
The handcart adopts screw propulsion mechanism, which moves the handcart easily and prevent mis operation to damage the propulsion mechanism.
All the operations could be done when the cabinet door is closed.
The interlocking between the main switch, the handcart and the switch cabinet adopts the mandatory mechanism of mechanical locking, meeting the functions of five- preventions.
The cable room is spacious and can be connected to a number of cables.
The degree of protection is IP4X,which effectively prevents the equipment from being invaded by sundries and insect pests.
The product runs safely and reliably through the harsh condensation, filth and internal arc tolerance test.
| No. | Content | Unit | Value | |
| 1 | Rated Voltage | kV | 40.5 | |
| 2 | Rated Current | A | 630/1250/1600/2000/2500 | |
| 3 | Rated Frequency | Hz | 50/60 | |
| 4 | Power Frequency Withstand Voltage in 1 min | Phase, Earthed | kV | 95 |
| isolating Fracture | 110 | |||
| 5 | Lightning impulse Withstand Voltage (Peak) | Phase, Earthed | 185 | |
| isolating Fracture | 215 | |||
| 6 | Rated Current of the Main Busbar | A | 630/1250/1600/2000/2500 | |
| 7 | Rated Current of the Branch Busbar | A | 630/1250/1600/2000/2500 | |
| 8 | Rated Short-circuit Breaking Current | kA | 20/25/31.5 | |
| 9 | Rated Short-time Withstand Current | kA | 20/25/31.5 | |
| 10 | Rated Peak Withstand Current | kA | 50/63/80 | |
| 11 | Rated Short Circuit Making Current | kA | 50/63/80 | |
| 12 | Frequency Withstand Voltage in 1min of Aux Control Loop | V | 2000 | |
| 13 | Internal Arc Duration Test (0.5s) | kA | 31.5 | |
| 14 | Degree of Protection | IP | IP4X (IP2X when the front door is opened) | |
| 15 | Rated Voltage of Aux Control Loop | V | AC or DC 110/220 | |

| Voltage | Rated parameters | A(mm) | B(mm) | C(mm) | D(mm) |
| 40.5kV | Down line | 1400 | 2600 | 2650 | 2800 |
| Overhead cable | 1400 | 2600 | 2650 | 3000 |
Remarks: 1600mm wide cabinet type can be customized.
Send us a message if you have any questions or request a quote.Our experts will give you a reply within 24 hours
and help youselect the right valve you want.